Яндекс.Метрика


Вход в личный кабинет
Войти Забыли пароль?


English       |    Russian  
Главная > Офисный центр > Поэтажные планы

Поэтажные планы


1 этаж:  434 кв.м.

2 этаж: 588 кв.м., 490 кв.м.

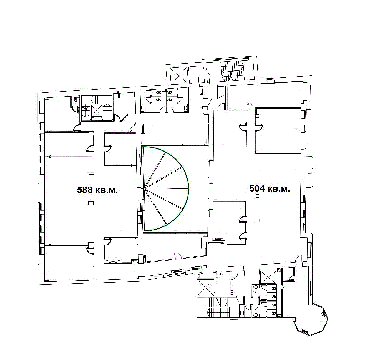
3 этаж: 588 кв.м., 504 кв.м.
 

4 этаж: 588 кв.м., 504 кв.м.

5 этаж: 588 кв.м., 504 кв.м.

6 этаж: 663 кв.м., 504 кв.м.

7 этаж: 650 кв.м., 490 кв.м

   
 


 


 




Copyright © 2010-2026. Компания "Yan-Ron".
Все права защищены.

Разработка сайта - InterLabs.

Адрес: 107045, г. Москва, Последний пер.,д.11, стр.1 (схема проезда)
Телефоны: +7 (495) 694-24-74; +7 (495) 607-00-07/09,
Факс: +7 (495) 694-24-58;
E-mail: secretary@g-group.ru